obra OBJETIVOS vista. UD1. Fachadas de obra vista de fábrica cerámica 1. Fachadas de obra vista 2. Soluciones constructivas 3. Morteros adecuados para la construcción de paredes de fábrica cerámica de cara vista 4. Condiciones de recepción Resumen Terminología Ejercicios de autoevaluación 10 14 21 24 26 27 28 CONTENIDOS. Además, el profesional puede descargar del dossier técnico 'Tipos de fachada de ladrillo cara vista' para conocer la aplicación de cada sistema, así como los elementos que los componen y sus ventajas respecto a otras soluciones.. En resumen, a través de una identidad única, este ecosistema es la solución constructiva más completa y segura para los usuarios, ya que ofrece diseño.

Galería de 50 de los mejores detalles de fachadas 11

Galería de 50 de los mejores detalles de fachadas 16

Detalle de la recuperación de la pared de obra vista en la habitación principal Vistas

fachada ventilada detalle Fachada ventilada, Diseño de fachadas, Revestimiento de paredes

Fachadas ventiladas, todas las ventajas de la piel que hace mas eficiente nuestros hogares.

Construcciones Y Rehabilitaciones Ion Tudose Opiniones & Precios habitissimo

Detalle Fachada Catedral Alfonso García Flickr

Fachada Madera Detalle

Diseño constructivo encuentro vierteaguas con fachada Constructivo, Detalle de ladrillo

Fotos gratis ventana, pared, vistoso, Obra de arte, art, Enmarcado, Argentina, Cuadros, juegos

Court Housing por architectenenen Sobre Arquitectura y más Desde 1998

Galería de 50 de los mejores detalles de fachadas 7

Detalle Arquitectónico Abstracto Arquitectura Moderna, Los Paneles Amarillos En Fachada Del

Diseño de ladrillo, Detalles de la arquitectura, Casas con estructura de acero

JACC Arquitecto Técnico, su blog Reparación de fachada necesaria pero mínima

Galería de En Detalle Fachada textil graduable 15 Renzo Piano, Zeppelin, San Antonio
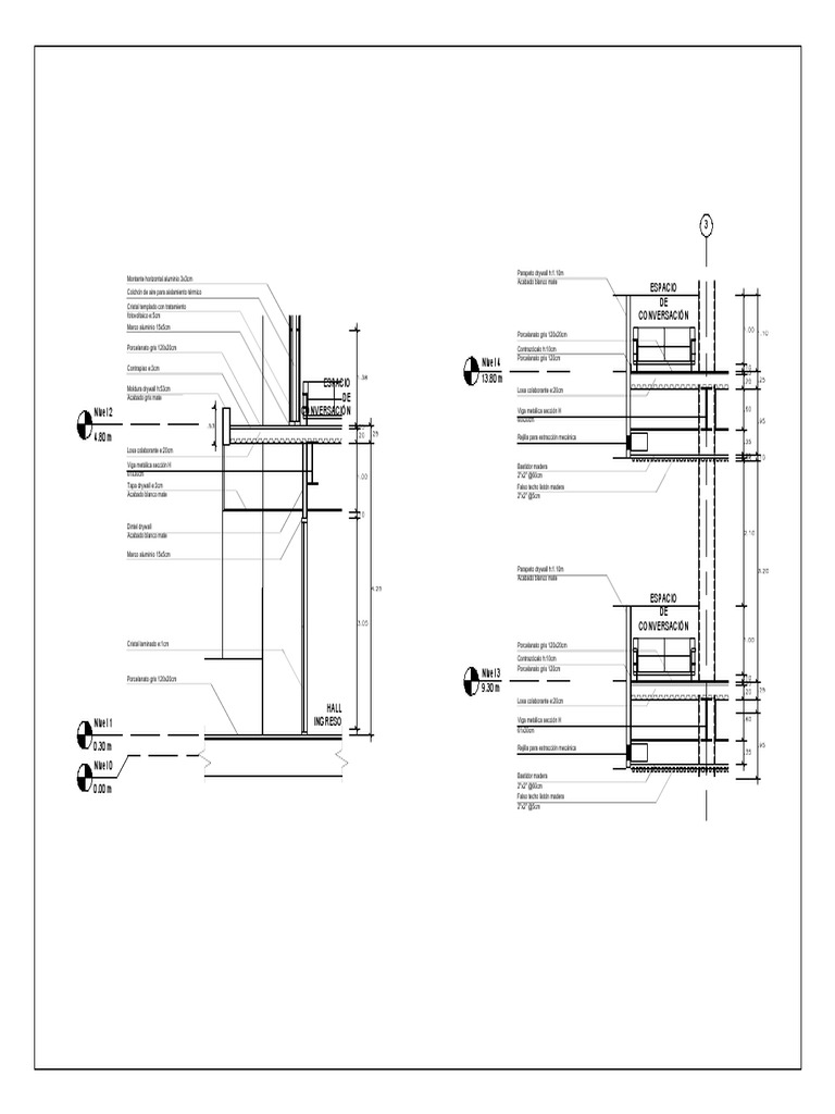
Detalle fachada.pdf PDF

Fotos gratis casa, ventana, edificio, color, fachada, Obra de arte, pintura, art, mural

Foto Detalle Obra en Fachada Edificio de Construcciones Y Rehabilitaciones Ion Tudose 324002

CHALET DE OBRA VISTA Construcción obras y reformas Valls
En la fachada autoportante STRUCTURA-GHAS la fábrica de ladrillo cara vista:. Arranca desde un elemento firme (cimentación, viga de canto de forjado de primera planta, cabeza de muro de sótano, cargadero).; Es pasante por delante de la estructura del edificio, permitiendo: cámara de aire (ventilada o no) y un aislamiento térmico continuo.; El muro de ladrillo cara vista recupera su.. El conocido éxito del material aplicado a diferentes tipos de construcciones -desde viviendas hasta museos-, presenta una diversidad de detalles de obra que merece una particular atención. Conoce una recopilación de 40 detalles constructivos de proyectos que se destacan por el uso del hormigón. Casa Scout / BAAG