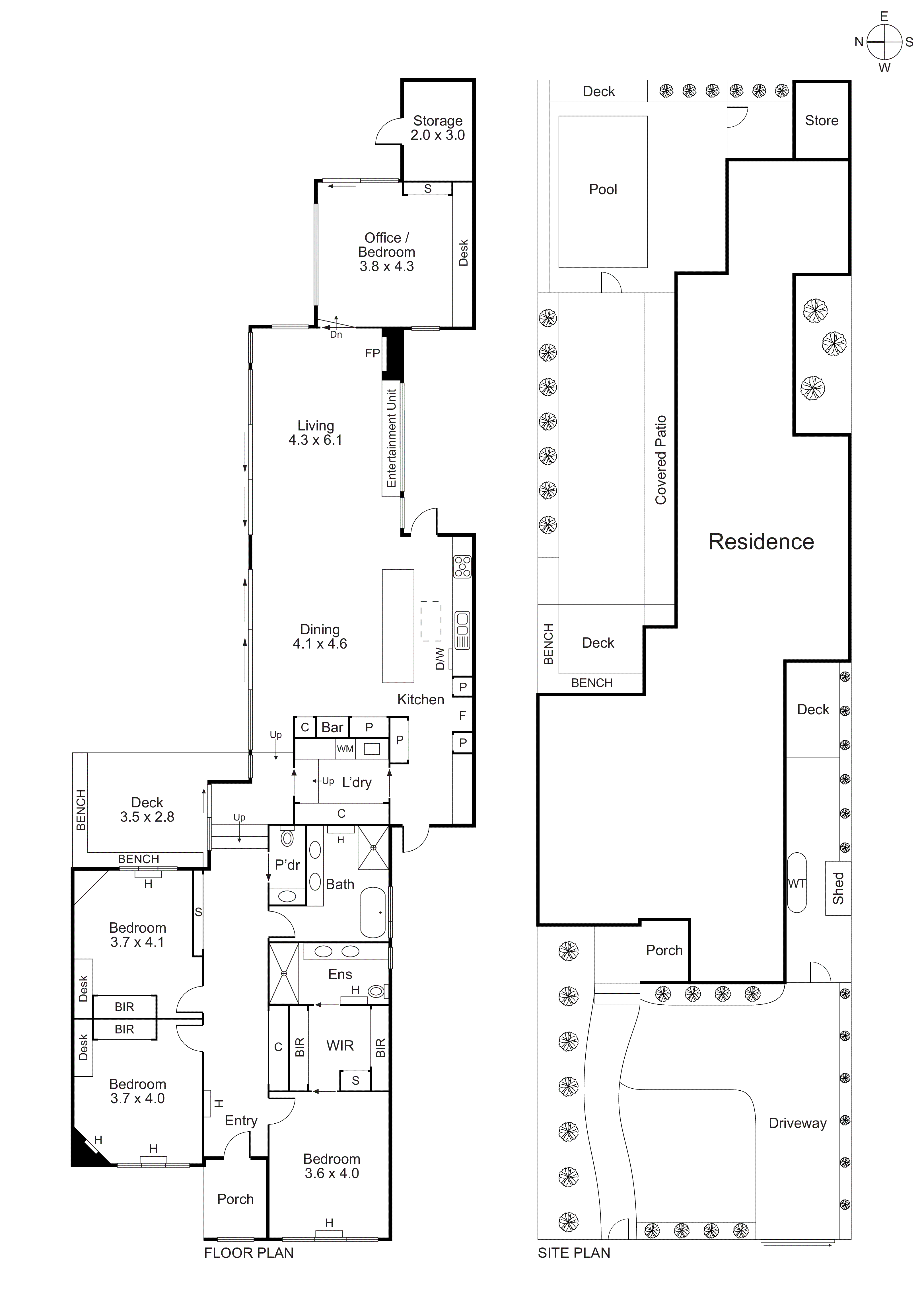
14 Prospect Grove, Black Rock, Vic 3193 has a land size of 508 m². It is a house that was built in 1950 with 4 bedrooms, 2 bathrooms, and 2 parking spaces. It was sold in 2023 for $2,700,000 by Buxton - Bentleigh. Median property prices in Black Rock over the last year range from $2,375,750 for houses to $1,027,500 for units.. Property data for 16 Prospect Grove, Black Rock VIC 3193. Get sold price history and market data for real estate in Black Rock VIC. Skip to navigation Skip to main.. 14 Prospect Grove, Black Rock, VIC 3193. 4. 2. 2. 15 Prospect Grove, Black Rock, VIC 3193. Off Market. $2,379,202 estimated value.
15 College Grove, Black Rock Property History & Address Research Domain

20a Prospect Grove, Black Rock VIC 3193 Buxton 2022

11 Prospect Grove, BLACK ROCK VIC 3193 Buxton 2022

7 Prospect Grove, Black Rock, VIC 3193

15 Grove Place, Prospect, NSW 2148

1 Prospect Grove, Black Rock, VIC 3193

19 College Grove, Black Rock, VIC 3193
3 Heather Grove, Black Rock VIC 3193 Domain
11A Prospect Grove, Black Rock Property History & Address Research Domain

Center Grove Black Rock Home Builders

1/18 College Grove, Black Rock, VIC 3193

Center Grove Black Rock Home Builders

Hilltop House, 9 Prospect Grove, Dunmanway, Co. Cork FindAHome.ie

14 Prospect Grove, Black Rock VIC 3193 Buxton 2023

2/6 Heather Grove, Black Rock, VIC 3193

Prospect Grove, Blackrock Contemporary Kitchen Other by eands Houzz IE
1 Prospect Grove, Black Rock VIC 3193 Domain

Prospect Grove, Blackrock Contemporary Kitchen Other by eands Houzz

1/1 College Grove, Black Rock, Vic 3193
11 Prospect Grove, Black Rock Property History & Address Research Domain
Property data for 7 Prospect Grove, Black Rock VIC 3193. Get sold price history and market data for real estate in Black Rock VIC. Skip to navigation Skip to main Home Following. 14 - 16 Darcy Avenue, Sandringham, VIC 3191. RATING. Exceeding NQS. REVIEWS. 4.0 (4) 4.0 out of 5 based on 4 user reviews. DAY RATE. POA. DISTANCE. 1.49km.. Unlock the Potential! 14 Prospect Grove, Black Rock. This sound, original one of a pair offers tremendous scope for the young couple to renovate or extend to maximize the potential and to utilize the fabulous space at the rear of the property. Comprising entry foyer to formal living, central kitchen/meals, 2 bedrooms and original bathroom.